ID CP2744105

Sanandrei Teren 35 Hectare - PUZ Aprobat | Centura - Autostrada - Hale

ID CP2744105

8,750,000 €

Teren de 350,000 mp de vânzare
Sanandrei
350,000 mp

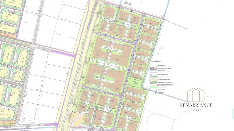
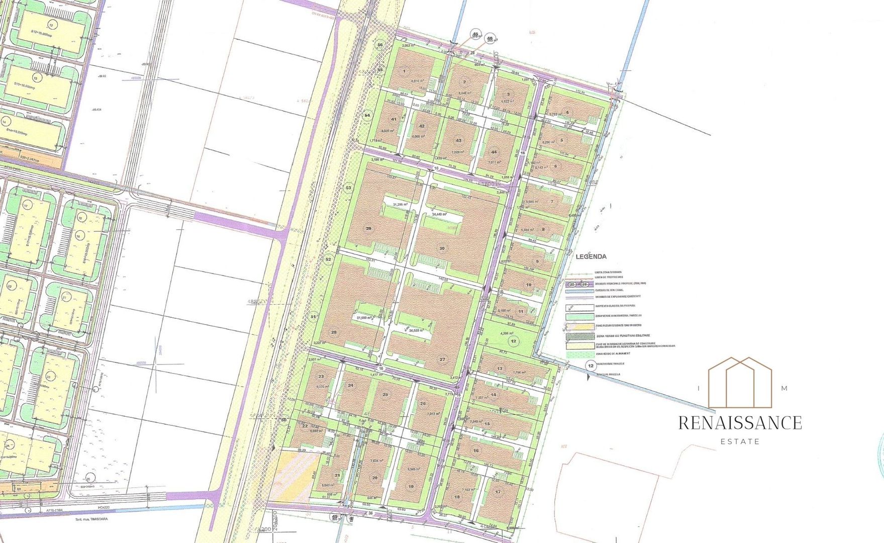
Renaissance Estate va ofera spre vanzare un teren extravilan cu suprafata totala de 350.400 mp (35 ha), situat in zona Sanandrei, cu acces facil catre Centura Timisoara si Autostrada A1, chiar la noua coborare. Proprietatea este formata din 3 parcele distincte, cu CF-uri individuale:

70.000 mp

53.600 mp

222.800 mp

Amplasamentul este unul strategic, potrivit pentru dezvoltari industriale, logistice si comerciale de anvergura.

Parametri urbanistici

PUZ APROBAT

CUT maxim: 1,5

POT maxim: 55%

Regim maxim de inaltime: S+P+2E

Inaltime maxima la cornisa admisa: 12 m

Functiune principala: activitati de productie cu caracter nepoluant, depozitare, comert si prestari servicii productie

Avantaje investitionale

Suprafata extinsa (35 ha), cu loturi comasabile, ce permit un masterplan unitar sau dezvoltare etapizata

Accesibilitate excelenta spre Timisoara si Centura – ideala pentru fluxuri logistice si productie

Parametri urbanistici generosi, ce permit constructii ample si flexibile ca destinatie

Zona in plina dezvoltare cu potential ridicat pentru investitii industriale si logistice

Toate utilitatile in zona

Posibile scenarii de dezvoltare

Parc logistic / hale industriale (module de 5.000 – 20.000 mp)

Hub de productie nepoluanta, cu spatii de birouri si servicii integrate

Centre comerciale en-gros sau servicii conexe productiei

Platforme de depozitare si distributie regionala, cu acces TIR facil

Situatie juridica & tranzactionare

Proprietatea este formata din 3 CF-uri distincte, fara sarcini

Documentatie cadastrala completa, disponibila pentru due diligence

Vanzare directa – teren disponibil imediat

Pret: 25€/mp - negociabil

Contact: RENAISSANCE ESTATE SRL

Reprezentant: Iulia Macovei

Pentru detalii suplimentare, harti, parametri tehnici si vizionari, va stam la dispozitie.

Citește mai mult

  • Tip teren
    Construcții
  • Suprafață teren
    350,000 mp
  • Număr fronturi stradale
    1
  • Deschidere la
    Șoseaua de centură
  • Clasificare
    Extravilan
  • Valoare incidență
    16.67
  • Disponibilitate
    Imediat
  • CUT
    1.5
  • POT (%)
    55.0
  • PUZ Aprobat
    Da
  • Număr etaje clădire
    2
  • Număr etaje retrase
    1
  • Număr subsoluri
    1

Facilități

Apă
Canalizare
Curent
Gaz
Iluminat stradal
Mijloace de transport în comun
Străzi asfaltate
Iulia Macovei - Renaissance Estate
Iulia Macovei
Manager

0743 991 902


Solicită chiar acum o vizionare
Telefon
Sună acum Solicită vizionare
Necesare:

Site-ul nu poate funcționa corect fără aceste cookie-uri. Vezi cookie-urile

Statistică:

Strângem statistici anonime despre voi, vizitatorii unici, pentru a vă îmbunătăți experiența dumneavoastră. Vezi cookie-urile

Marketing:

Pentru a ne promova mai eficient serviciile noastre, folosim cookies pentru a vă identifica și a vă oferi proprietăți și servicii personalizate. Vezi cookie-urile

Acest site folosește cookies, află detalii. Alege ce tipuri de cookies dorești să permitem: