ID CP2518251

Sagului Hala Depozitare 500-1000mp | Clasa A

Această proprietate nu mai este activă,
te invităm să vizualizezi proprietăți similare

ID CP2518251

2,500 € + 21% TVA

Spațiu industrial de închiriat
Sagului, Timisoara
500 mp
2024

Renaissance Estate va ofera spre inchiriere două hale alăturate, fiecare având o suprafață de 500 mp, cu un total de 1000 mp utili, într-una dintre cele mai bine poziționate zone industriale din Timișoara!


🏢 Caracteristici principale:

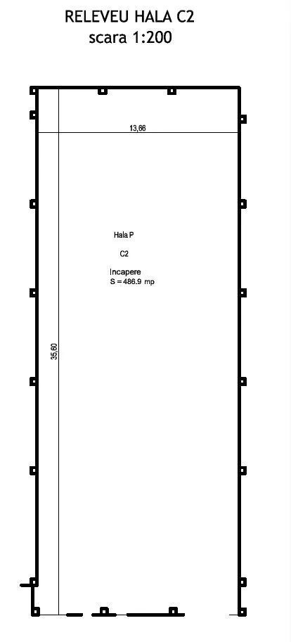
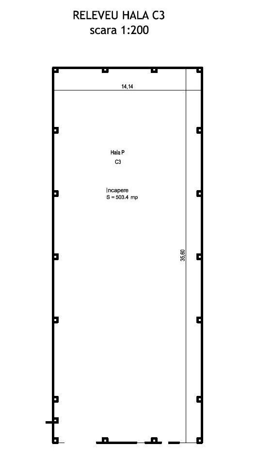
Suprafață totală: 1000 mp utili (două hale a câte 500 mp fiecare)

Înălțime: 8,3 m la streașină și 9 m în coamă

Structură modernă: Clădire de clasa A, cu avize PSI periodice actualizate

Utilități: Apă, canalizare, gaz, curent trifazic

Încălzire:

Panouri radiante electrice sau sistem pe gaz

Sistem de automatizare eficient, reglabil pe ore și zile, ideal pentru optimizarea costurilor

Achiziția, montajul și punerea în funcțiune a sistemului de încălzire sunt în sarcina chiriașului

🔒 Costuri suplimentare:

Mentenanță și paza: 1 €/mp, incluzând:

Întreținerea canalizării și stației de epurare

Monitorizare video și serviciu de pază permanentă

Întreținerea sistemelor PSI

Colectarea deșeurilor

Chirie: 6 €/mp + TVA

Utilitățile: Se facturează separat, în funcție de consum

Garanție: Contravaloarea a trei luni de chirie

Perioadă minimă de închiriere: 12 luni

🖇️ Spații birouri disponibile:

Birou 1: 75 mp – grup sanitar propriu

Birou 2: 40 mp – grup sanitar propriu

Preț: 6 €/mp + TVA, pot fi închiriate separat sau împreună

📍 Locație excelentă:

Situată pe Calea Șagului, zonă industrială bine conectată la principalele artere de circulație ale orașului și autostrăzi

Această hală este ideală pentru activități logistice, producție sau depozitare, oferind condiții moderne, sigure și flexibile pentru afacerea ta!

📞 Contactează-ne pentru detalii suplimentare sau pentru a programa o vizionare!

Citește mai mult

  • Tip imobil
    Hală
  • Etaj
    Parter
  • Clasă birouri
    A
  • Număr camere
    1
  • Număr băi
    2
  • An construcție
    2024
  • Construcție nouă
    Da
  • Număr locuri parcare
    10
  • Suprafață utilă
    500 mp
  • Suprafață depozitare
    500 mp
  • Înălțime interioară
    8.3
  • Disponibilitate
    Imediat
  • Compartimentare spațiu
    Open space
  • Cadastru
    Există
  • Intabulare
    Există

Facilități

Acces auto
Acces TIR
Apă
Canalizare
Curent
Curent trifazic (380V)
Garaj
Gaz
Iluminat stradal
La șosea
Luminatoare
Mijloace de transport în comun
Străzi asfaltate
Teren împrejmuit
Necesare:

Site-ul nu poate funcționa corect fără aceste cookie-uri. Vezi cookie-urile

Statistică:

Strângem statistici anonime despre voi, vizitatorii unici, pentru a vă îmbunătăți experiența dumneavoastră. Vezi cookie-urile

Marketing:

Pentru a ne promova mai eficient serviciile noastre, folosim cookies pentru a vă identifica și a vă oferi proprietăți și servicii personalizate. Vezi cookie-urile

Acest site folosește cookies, află detalii. Alege ce tipuri de cookies dorești să permitem: